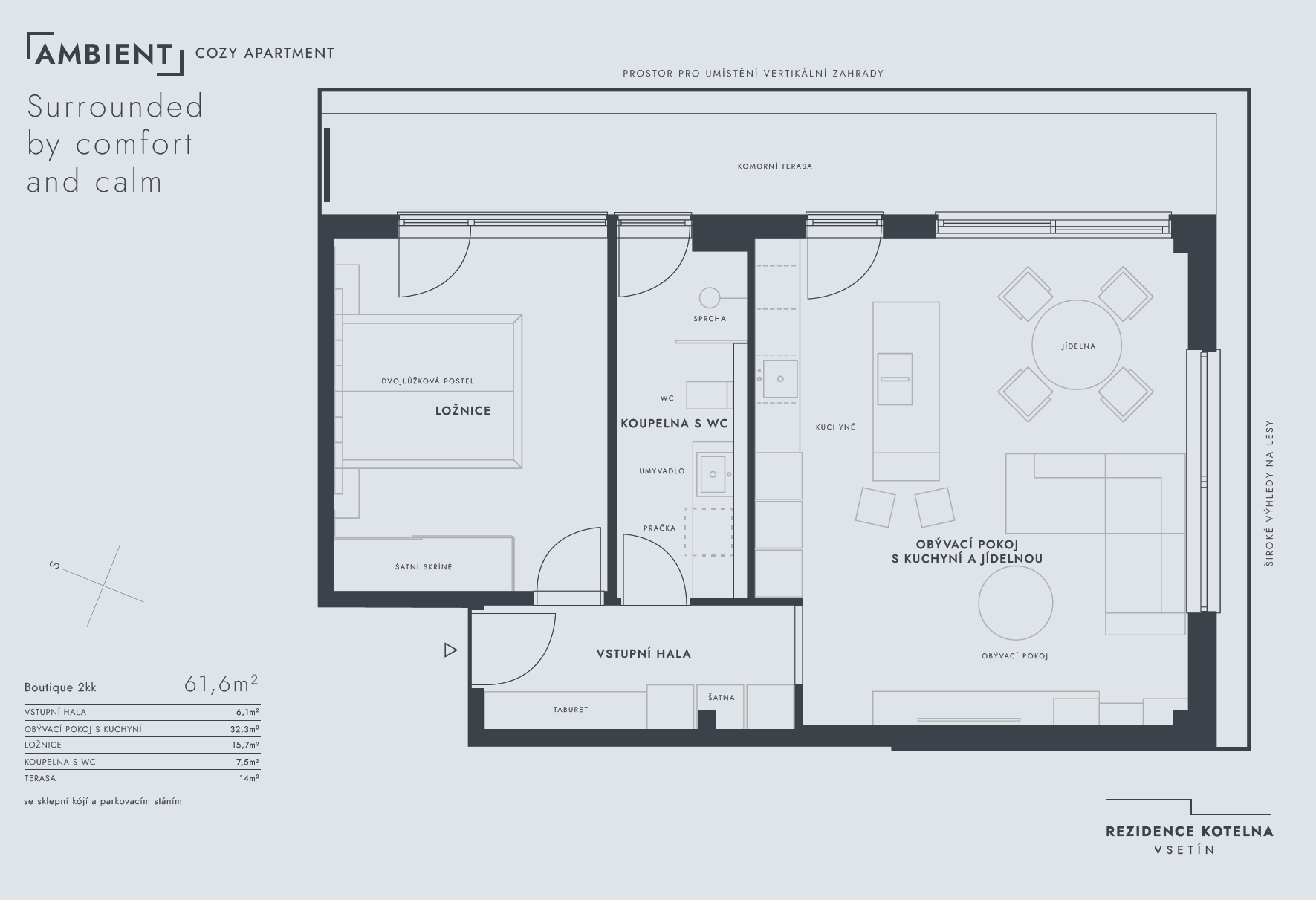
Byt E